6133 Rolling Hills Loop Chubbuck, ID 83202
Under Construction
$429,900
Floor Plan:
The Harrisburg
Community:
Harvest Springs
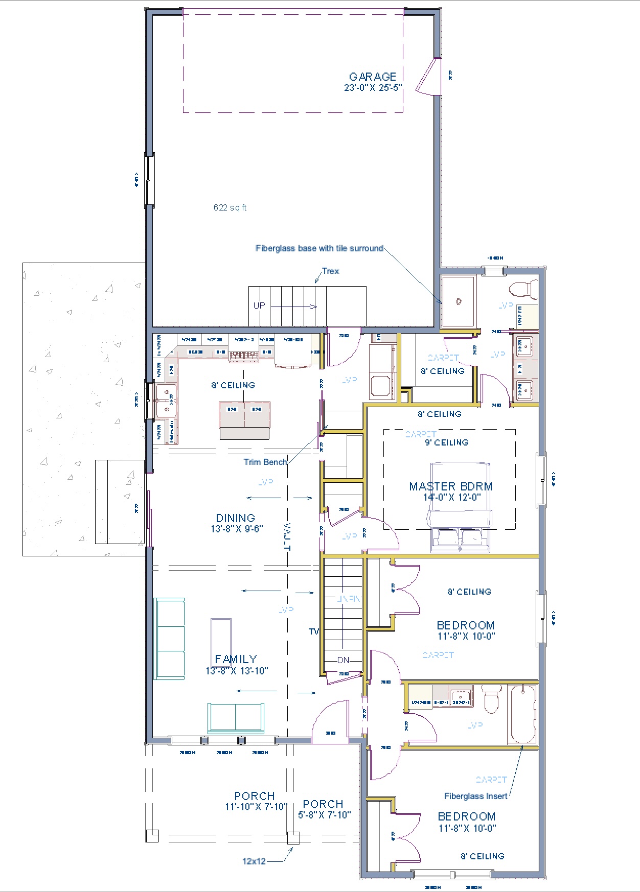
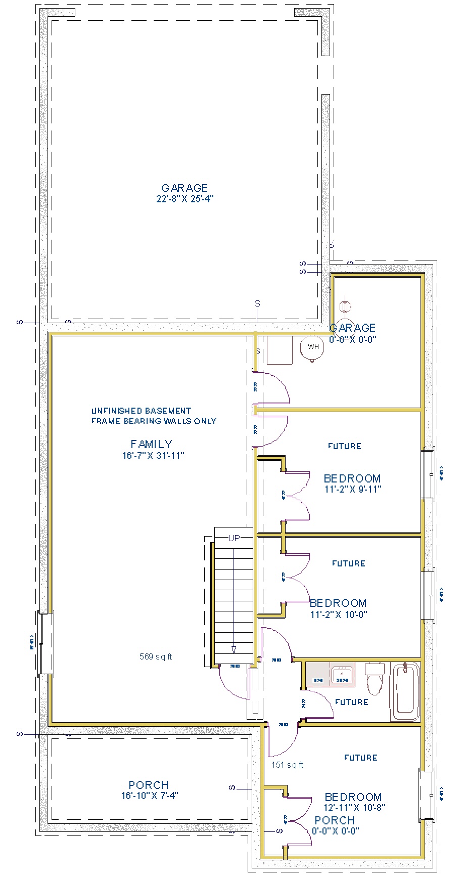
2626
Total
1313
Finished
3
Beds
2
Baths
2
Car
0.15
Acres
For More Information


Description
Built with masterful precision this stunning home currently offers 3 bedrooms and 2 bathrooms on the main floor with a full unfinished basement. Highlights include a large covered front porch, spacious closets, quartz countertops, LVP flooring, custom craftsman cabinets. The spacious master bathroom features a large shower and double sinks. Two car garage with space for RV parking. Bsmt features 3 more bedrooms, bathroom, and family room that can be finished for an additional cost.








-p-500.jpg)
-p-500.jpg)


